2.课程实施
(1)工程实例引领课程学习
在进行CAD的绘图命令讲授时,如果仅仅是按照课本中的简单图样进行绘制练习,与学生感兴趣的实际工作不能挂钩,将难以引起学生的兴趣。因此,在课程改革和创新的过程中,教师应该尽量把要讲授的命令和实际工作联系起来,抓住学生的兴趣点。例如,可以将命令的绘制练习融入到实际的建筑施工图中,让学生能够在课堂中更多地接触到以后在工作中要识读和绘制的施工图,这有利于学生为以后的实际工作打下扎实的基础。这种方式的优点是在讲授CAD绘制技巧的同时,让学生能够锻炼读图和画图的能力。因此,原本课程中乏味的一系列命令的学习,转变成了根据图纸需要来学习命令,让命令的学习服务于绘制建筑施工图这一实际工作,这样可以提高学生的学习积极性,达到工学一体的目的。
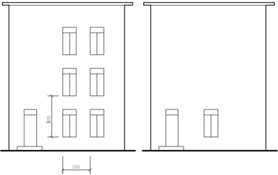
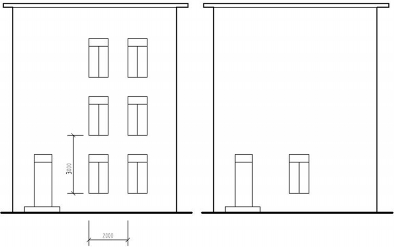
笔者在进行“阵列命令”的讲授时,通过以下图所示的建筑立面图相结合来激发学生的兴趣。如图1,给学生右侧的图,让学生补充完整所有的窗。通过阵列命令,先通过下图左侧完整的立面图让学生清楚什么是行,什么是列,因为在阵列命令中需要写出行数和列数。当学生清楚横方向为行,纵方向为列之后,可以开始使用阵列命令来绘制立面图。首先选择已给出的那一扇窗户,输入阵列命令快捷键“AR”,选择矩形阵列的模式,根据下图中的窗户,输入三行两列的信息,之后只要按照左图的尺寸标注输入行间距为3000毫米,列间距为2000毫米,就可以把剩下五个窗户一次性画出。让学生感受到运用阵列命令绘制立面图的快捷之处,学生就能够积极参与到学习中,并且能为以后工作中绘制CAD图养成良好的思维方式,能够更快捷准确地绘制图纸。
其他的常用绘图命令都可以通过与建筑施工图相结合来学习。例如:用圆弧命令绘制出施工图中的门的开关线;用多线命令绘制施工图中的墙线;用文字命令书写门窗编号等。总之,工学一体课程就是通过具体的施工图,学生在绘制施工图的过程中,教师可以将常用命令渗透其中,并教授给学生,让学生掌握这些命令,由浅入深。在学生掌握了基本命令之后,可以绘制一套较为完整的施工图,以整体提升学生的读图和绘图能力。
(2)运用多种技巧,提高绘图水平
计算机绘图有很多技巧可以让学生进行开发和应用,教师要指导学生善用这些技巧以便更快捷地完成任务,开阔学生的绘图思路,让他们知道解决问题的途径有很多,要多思考多总结才能提高绘图水平。
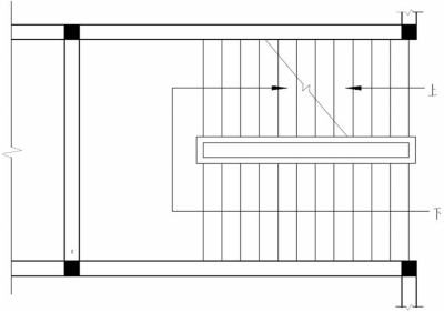
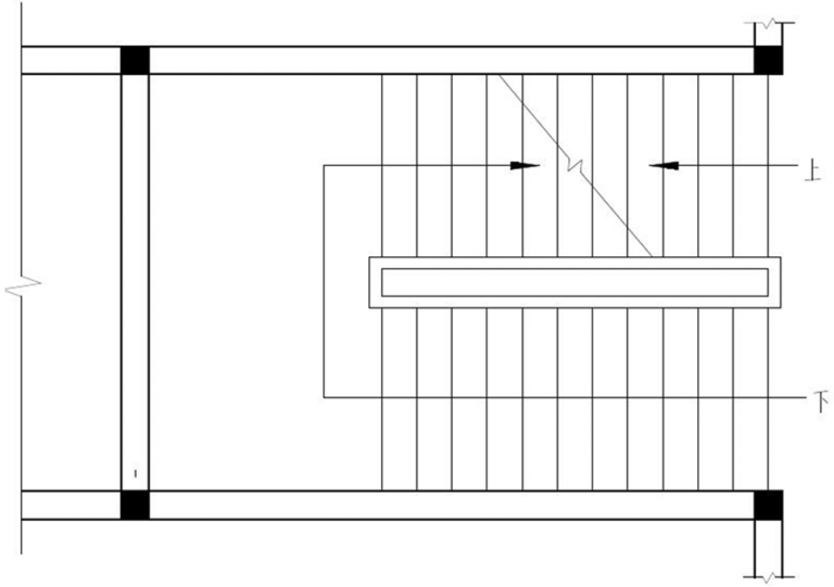
例如,绘制建筑的二层楼梯平面(如图2),此楼梯两个梯段中的踏面部分的线是对称的,所以绘制时只需绘制一个梯段的线,另外一个梯段可以通过镜像命令一步完成。每个梯段踏面要绘制的线一共有12条,只需用直线命令绘制出第一条线段,再使用复制命令进行复制,输入一个踏步宽度300毫米复制出第二段线,并运用连续复制的功能,再输入600毫米复制出第三段线。然后将这三条线段全部选择并进行复制,这样将已经画出的三个对象一起复制,会比一个一个复制更快。复制时通过选择基点的方式将剩余的九条线段绘制出来。在绘制踏面时使用了复制命令和镜像命令,大大提高了绘图速度,比有些学生一开始所想的用一根线慢慢偏移要快捷很多。通过这样的技巧讲解,可以让学生学习到快捷的绘图思路,学生通过这样的技巧学习,在实际绘图中遇到具体问题时就能快速地想到便捷的方法进行绘图,能够灵活运用所学的绘图命令。
3.教学效果
学生喜欢这样的学习方式,课堂开小差的现象明显减少,一般一节课能完成真实施工图的一部分,绘图、读图、识图三不误,以职业标准和制图标准指导学生绘图,提升学生的职业认同感。
四、工学一体课型在《计算机绘图》课程中的描述
1.课型的含义
在《计算机绘图》课程中,工学一体是以真实的工作任务为学习内容,将命令技巧的学习融在任务中完成。打破以往的先学直线命令再学曲线命令的常规,按绘图需要学习命令。



