教学以实际加工零件为载体,教学组织按照“资讯—计划—决策—实施—检查—评估”六个步骤进行编排。
1.资讯。教师做好前期准备,包括:确定教学项目,场地布置,引导学生按兴趣、能力和特长4~6人进行分组等。教师引导学生通过搜索百度网页和机加工课程建设网站等网络,查阅机械制图、机械基础、车工工艺、机械工程手册等书籍,小组讨论等方式收集零件图的识读,公差配合知识,工艺知识等信息,帮助学生理解零件图,分析零件加工工艺。
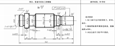
2.计划。教师引导学生小组合作,对零件加工进行工艺卡设计,确定具体加工步骤并形成加工方案,填写机械加工工艺过程卡片(见表2),帮助学生拟定零件加工工艺,选择机床的参数、毛坯和刀具。
3.决策。学生上交加工方案和机床参数,工、量、刃具和毛坯材料选择方案,师生共同找出方案的缺陷,并进行补充。教师帮助学生准备设备,工、量、刃具和毛坯材料,并根据学生小组制定的加工方案汇总与修正,形成完整的机械加工工序卡片(见表3),并公示,要求学生按照要求执行。



